38 Couston Street, Dunfermline, KY12 7QW

Offers Over £375,000 (Sold)

Details:

Bedrooms - 5
Public Rooms - 2
Heating Type - Gas

Features:

  Beautiful Garden

  Walking distance of Railway Station & City Centre

  Period features

  Quiet setting

  Flexible layout

  Conservation area

  Desirable location

  West facing rear garden

Download Property Schedule

Share


Property Description

Rarely available, a Victorian semi detached villa in desirable city centre conservation area.

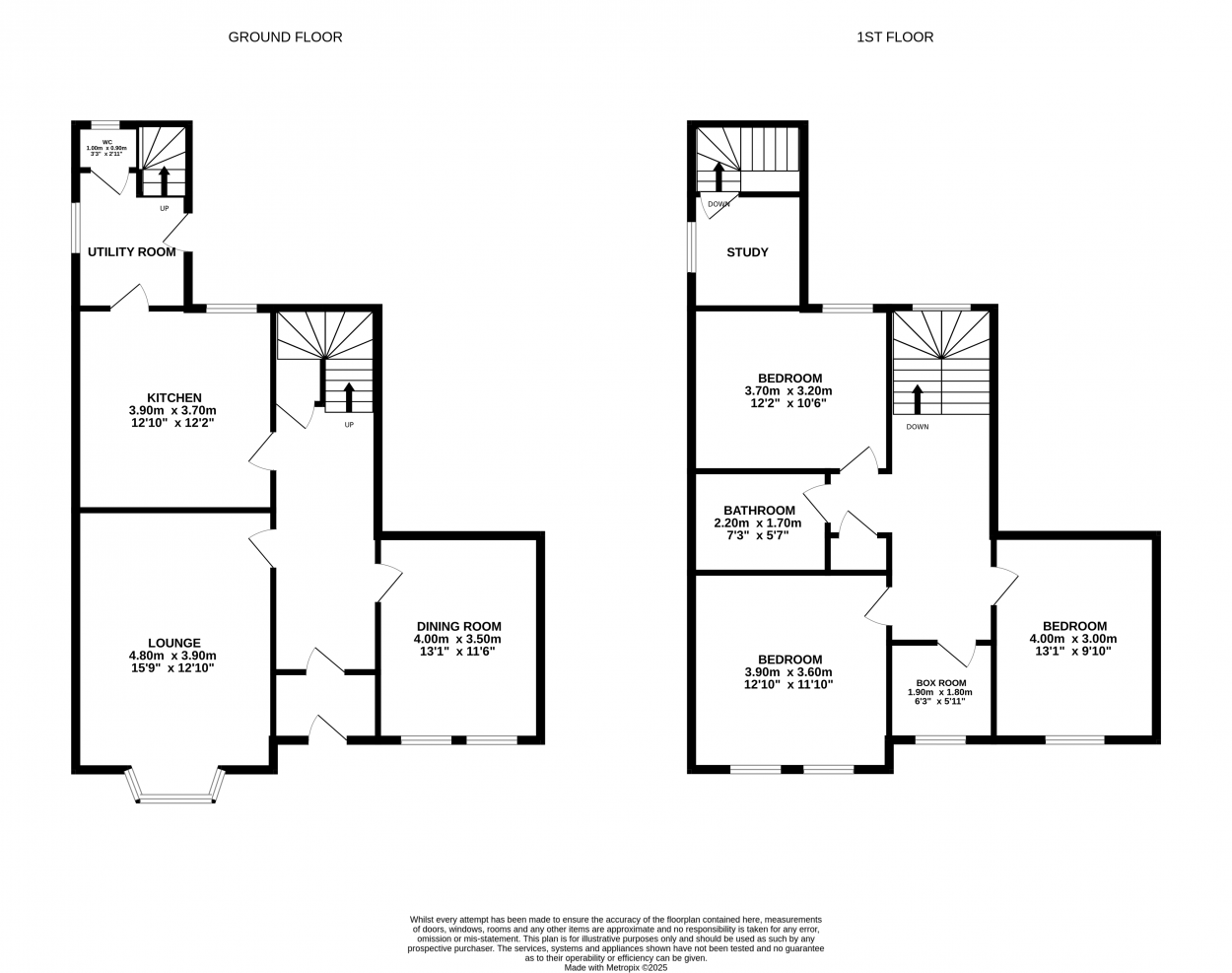
Accommodation comprises: entrance vestibule, reception hallway (with feature oak staircase and stained glass window at half landing height), bay windowed lounge, dining room/downstairs double bedroom, dining kitchen (with Rayburn Aga).

 aga), utility room, WC/cloaks, staircase to maids single bedroom/office, upper landing (with office space), three further double bedrooms, single box bedroom and bathroom.

Gas central heating and charming sash and case windows are installed throughout and there are many period features including deep skirting, etched glass, decorative ceiling coving, useful wooden pulley and picture rails. EPC rating: E. Council tax band: F. 

The beautiful walled gardens boast a host of flower beds, mature trees, well manicured lawn, shrubs, patio and drying facilities are provided.  The garden to rear enjoys a west facing aspect, peaceful setting and original stone-built outbuilding.

Couston Street is a long established and highly sought-after residential area enjoying an attractive and convenient setting within walking distance of railway station, Dunfermline City Centre, public parks, Carnegie Hall and well reputed schools.    For the commuter, easy access can be gained to the M90 motorway with direct links to Edinburgh, Perth and Dundee and central Scotland via the Kincardine Bridge and Queensferry Crossing.  Couston Street forms part of a conservation area.

 

 

 

Contact Us