32 Otterston Grove, Dalgety Bay, KY11 9PA

Offers Over £155,000 (Under Offer)

Details:

Bedrooms - 2
Public Rooms - 1
Heating Type - Part underfloor only

Features:

  Cul de sac setting

  Walking distance of Railway Station

  Pleasant outlooks

  Sought after location

  Requires upgrading

  Close to excellent local amenities

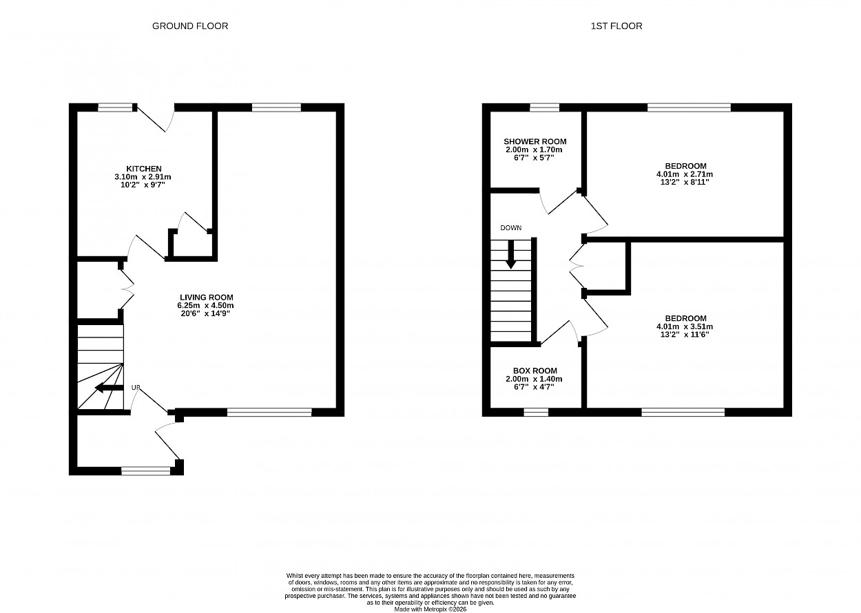
  Box room

Download Property Schedule

Share


Property Description

A well proportioned mid terraced villa in a quiet cul de sac setting, close to excellent local amenities.

 

Accommodation comprises: entrance vestibule, lounge/diner (with open plan staircase), kitchen (with pulley), upper landing, two double bedrooms, box room and modern shower room.

 

There are double glazed windows throughout, good storage, partial underfloor heating (lounge), pleasant outlooks and useful key safe to front. The property would benefit from general modernisation throughout.  Council tax band B. EPC: F. 

 

There are neat garden grounds to front and rear, which enjoy maximum privacy, a quiet setting, two timber garden sheds, patio area, generous lawn, open outlooks and ample on street parking to front.

 

Otterston Grove is located off Bouprie Rise/Moray Way North, close to good local amenities within the sought after coastal town of Dalgety Bay, situated on the northern shores of the River Forth.  Many mature trees have been retained and there are pleasant walks and small coves.  For the commuter the M90 Motorway (Edinburgh/Perth) and Dalgety Bay Railway Station (with services to Edinburgh) are located close by.  A regular bus service operates and there are good local shops, popular restaurants and sports and fitness centre all within easy reach.   Dunfermline City Centre is only six miles away.

This property is being sold in its present condition and no warranty will be given to any purchaser with regard to the existence or condition of the services or any heating or other system within the property.

 

 

Contact Us